Auburn Courtyard is a boutique nine-home development located within walking distance of Auburn University and Jordan-Hare Stadium. Featuring two modern cottage designs arranged around a shared green courtyard, the community blends comfort, convenience, and timeless design. Each home is built with high-quality materials, modern finishes, and the craftsmanship that defines Farber Quality Construction — offering a perfect mix of luxury and livability in the heart of Auburn.
Cottage 1
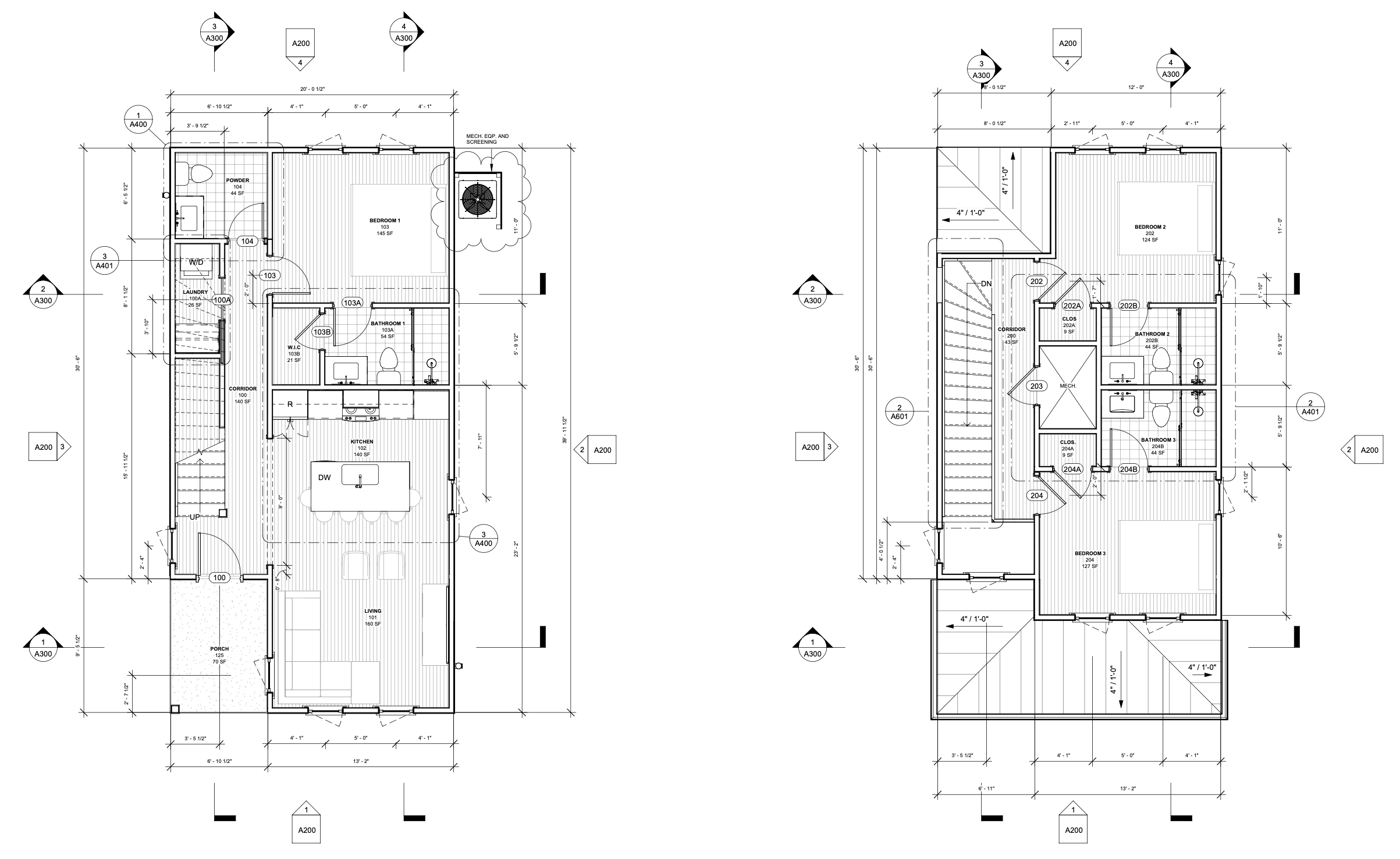
Cottage 1: The Floor Plan
Cottage 2
Cottage 2: The Floor Plan